Cantral Park
______________
Ficha técnica
Projeto de Arquitetura Legal: Zuhaus Projetos
Incorporadora e Construtora: Muniz
Localização: Poços de Caldas – MG
Área construída: 14.732,00 m²
Projetado: 2024
Torres: 3
Categoria: Residencial multifamiliar e Comercial
Unidades habitacionais: 88 apartamentos
Unidades comerciais: 9 salas
Vagas de garagem: 199 vagas de estacionamento, sendo: 182 residenciais, 17 comerciais e mais 46 vagas de moto depósito.
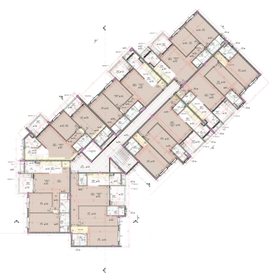
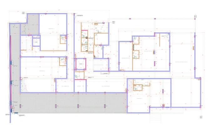
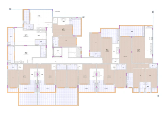
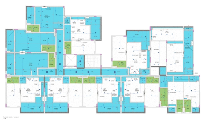
O Central Park é um empreendimento residencial de alto padrão, composto por três torres com acessos independentes e fachada neoclássica. Conta com infraestrutura completa de lazer e conveniência, incluindo piscina aquecida, salão de festas, áreas comuns decoradas, bicicletários, quadras esportivas, playground, pet place e muito mais. Com diferenciais como predisposição para automação, medição individual de água e gás, recarga para carro elétrico e coberturas duplex, oferece conforto, sofisticação e tecnologia em um só lugar.
A Zuhaus foi responsável pelos seguintes escopos técnicos:
Projeto executivo de arquitetura
Projeto executivo elétrico
Projeto de cabeamento estruturado
Projeto de SPDA (Sistema de Proteção contra Descargas Atmosféricas)
Projeto estrutural em concreto armado
Projeto de gás natural
![[Zuhaus Projetos] Central Park D](https://zuhausprojetos.com.br/wp-content/uploads/2025/08/Zuhaus-Projetos-Central-Park-D.webp)
![[Zuhaus Projetos] Central Park E](https://zuhausprojetos.com.br/wp-content/uploads/2025/08/Zuhaus-Projetos-Central-Park-E.webp)
![[Zuhaus Projetos] Central Park F](https://zuhausprojetos.com.br/wp-content/uploads/2025/08/Zuhaus-Projetos-Central-Park-F.webp)
![[Zuhaus Projetos] Central Park G](https://zuhausprojetos.com.br/wp-content/uploads/2025/08/Zuhaus-Projetos-Central-Park-G.webp)
![[Zuhaus Projetos] Central Park H](https://zuhausprojetos.com.br/wp-content/uploads/2025/08/Zuhaus-Projetos-Central-Park-H.webp)
![[Zuhaus Projetos] Central Park I](https://zuhausprojetos.com.br/wp-content/uploads/2025/08/Zuhaus-Projetos-Central-Park-I.webp)
A adoção da modelagem BIM em todas as disciplinas técnicas permitiu alta precisão na compatibilização dos sistemas e maior assertividade na execução em campo, reduzindo riscos e retrabalhos.
Dados de projeto
Unidades consumidoras de energia: 97 unidades
Transformadores: 3x300KVA + 1x150KVA (todos pad mounted)
Rede de Distribuição Elétrica: Subterrânea de Média Tensão
Sistema de armazenamento e distribuição de água: 430m³
Sistema de retenção de água pluvial: 322m³
Tem um projeto em mente? Fale com nossos especialistas!
________________________________________________________________
Tem um projeto em mente?Fale com nossos especialistas!
____________________________
______________________________
